Projekty Domov
O spoločnosti
Kontakt
O Projektoch
Objednávka
FAQ
Partneri
Financie
Užitočné linky
Duet 0
|
Zrkadlové zobrazenie
|
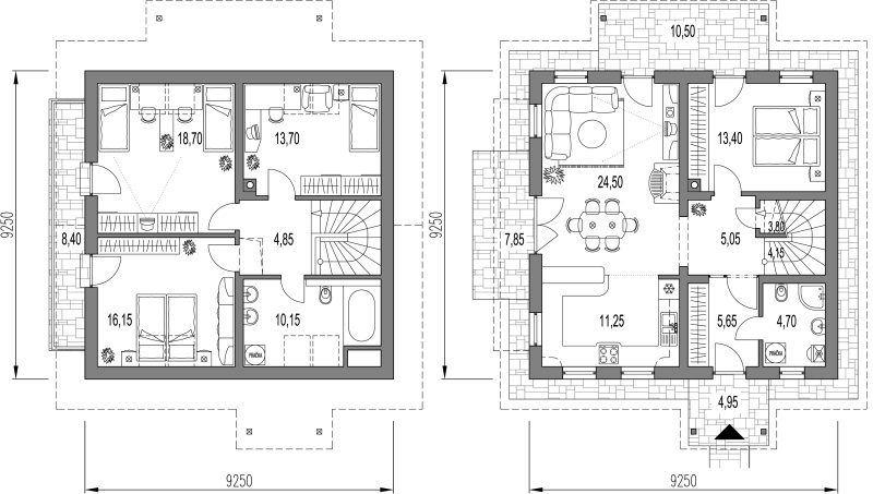
Pôdorys
Zobrazenie:
Normálne
Zrkadlové
Vizualizácia
Pôdorysy
Informácie
Objednávka
Stiahni PDF pôdorysu